Woolley & Parks Estate Agents
X
× Home Sell Your Home Book In-Depth Online Valuation Instant Valuation Lettings Land & New Homes Success Stories Register New Homes Available About Us Meet the Team Blogpost Contact Us

2 Bedrooms House - End Terrace Sold Subject to Contract

Beaver Road, Beverley £130,000

2 2 1 1 2 2
***NO ONWARD CHAIN - AFFORDABLE STEP ONTO THE HOUSING LADDER OR IDEAL INVESTMENT - END TERRACE HOME*** 360° VIRTUAL TOUR AVAILABLE ONLINE***

This traditional end terrace home is offered to the market with the benefit of NO ONWARD CHAIN, representing a great opportunity for FIRST TIME BUYERS, INVESTORS AND DOWNSIZERS alike. Standing in an established residential location, close to local amenities, the property briefly comprises of two Reception Rooms, Kitchen and Bathroom to the ground floor, with two Double Bedrooms upstairs. To the rear and side is a low maintenance courtyard garden with a generous storage shed. A tenfoot access at the side of the property offers potential for OFF STREET PARKING if required.
  • Traditional End Terrace Home
  • Ideal First Home, Investment Or Downsize
  • Two Double Bedrooms
  • Two Reception Rooms
  • Low Maintenance Courtyard Garden
  • Gas Central Heating And Double Glazing
  • Popular Residential Location
  • Close To Amenities
  • NO ONWARD CHAIN
  • EPC Rating - D

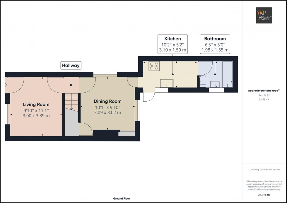
Front Reception (3.38m x 3.00m)

A uPVC double glazed panel door opens into the front room, with double glazed window to the front elevation, modern fireplace, radiator, TV point and fitted carpet.

Lobby And Stairs

With fitted carpet and straight flight staircase.

Rear Reception (3.07m x 3.00m)

With radiator, TV point, fireplace, fitted alcove cabinets, under-stair cupboard, fitted carpet and double glazed windows to the side and rear elevations.

Kitchen (3.10m x 1.57m)

A galley Kitchen is fitted with a range of base, wall and drawer units in a beech wood laminate finish with wood-block effect rolled edge worktops, stainless steel sink unit and splash back tiling. With integrated electric oven and gas hob, wall mounted gas central heating boiler and recess space to accommodate freestanding washing machine. With laminate flooring, double glazed window and a uPVC double glazed panel door opening to the rear courtyard garden.

Bathroom (1.96m x 1.52m)

A white suite comprises of a panelled bath with shower over, pedestal wash basin and a WC, with splash back tiling, radiator and a double glazed window.

First Floor

Access to the Bedrooms.

Bedroom One (3.40m x 3.07m)

A double room with radiator, fitted carpet, built-in storage space over the stairs, traditional fireplace feature and a double glazed window to the rear elevation.

Bedroom Two (3.38m x 3.00m)

Also a double room, again with radiator, fitted carpet, traditional fireplace feature and a double glazed window to the front elevation.

External

The property has a fenced forecourt to the front, with hand gate. A tenfoot at the side of the property gives vehicular access for neighbouring properties. The fenced boundary to the rear and side garden could be repositioned to provide a pull-in parking space.

Courtyard Garden

Extending to the rear and side of the house, within a fenced perimeter, landscaped for ease of maintenance and including a substantial storage shed.

Services

It is understood that the property is connected to all mains services.

Tenure

The property is understood to be Freehold (To be confirmed by Vendor's Solicitor).

Council Tax

Council Tax is payable to East Riding of Yorkshire Council, with the property understood to be rated in Tax Band - A.

Virtual Viewing/Videos

A 3D virtual Tour/video of this property has been commissioned to enable you to obtain a better picture of it before deciding to arrange a physical viewing. We accept no liability for the contents/omissions of the video/3D Tour and recommend a full physical viewing takes place before you take steps in relation to the property (including incurring expenditure).

Measurements:

All measurements have been taken using a laser tape measure or taken from scaled drawings in the case of new build homes and therefore, may be subject to a small margin of error or as built.

Disclaimer:

These particulars are produced in good faith, are set out as a general guide only and do not constitute, nor constitute any part of an offer or a contract. None of the statements contained in these particulars as to this property are to be relied on as statements or representations of fact. Any intending purchaser should satisfy him/herself by inspection of the property or otherwise as to the correctness of each of the statements prior to making an offer. No person in the employment of Woolley & Parks Ltd has any authority to make or give any representation or warranty whatsoever in relation to this property.

Draft Details:

To date these details have not been approved by the vendor and should not be relied upon. Please confirm all details before viewing.

Floorplan for Beaver Road, Beverley Floorplan for Beaver Road, Beverley Floorplan for Beaver Road, Beverley
EPC Graph for Beaver Road, Beverley

To discuss this property please call us on:

01377 252095

Ref No: 33139815

ARRANGE A VIEWING