Woolley & Parks Estate Agents
X
× Home Sell Your Home Book In-Depth Online Valuation Instant Valuation Lettings Land & New Homes Success Stories Register New Homes Available About Us Meet the Team Blogpost Contact Us

4 Bedrooms House - Detached For Sale

Armistice Park, Driffield £300,000

4 4 2 2 2 2
***GENEROUS SIZED FAMILY HOME ENJOYING A CORNER PLOT***360° VIRTUAL TOUR AVAILABLE ONLINE ***

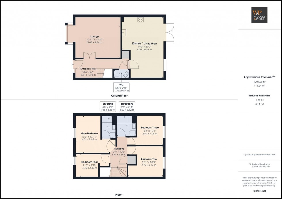
This superb four bedroom detached property has been well maintained and enhanced by the current owners, having been completed in 2018 by the highly regarded developers, Linden Homes, the property presents an ideal opportunity for those looking for a modern and well presented home in a turn key condition. Naturally light and inviting accommodation over two floors with a stylish neutral décor and quality fixtures throughout. The property comprises, entrance Hall, W/C, formal lounge and an open plan living/dining/kitchen to the ground floor with four good sized bedrooms, en-suite and family bathroom to the first. Enjoying a corner plot this home boasts an impressive sized garden that provides a fair degree of privacy throughout plus single detached garage and private drive. Situated within the sought after market town of Driffield this home offers a variety of amenities to hand plus well regarded schools, transport links and countryside walks on the door step. Internal viewings highly recommended to fully appreciate the true and quality of the home on offer.
  • Attractive Detached Family Home
  • Open Plan Living at its Best
  • Beautifully Presented with a Modern Décor
  • Four Good Sized Bedrooms
  • Generous Corner Plot
  • Single Garage and private Drive
  • Popular Location
  • Close to Amenities
  • Internal Viewing Essential
  • EPC Grade B.

Entrance Hall (5.61m x 1.98m)

Naturally light and inviting entrance hall with composite external door to front elevation, turn flight staircase leads to first floor accommodation, built in cloakroom cupboard, central heating radiator and fitted carpets laid throughout.

W/C (1.70m x 0.87m)

Fitted with a stylish two piece suite comprising pedestal wash basin and low flush w/c, tiled splash back, central heating radiator and ceramic tiled floor.

Lounge (5.49m x 4.24m)

Beautifully presented formal lounge with double door entrance, double glazed box bay window to front elevation, central heating radiator and fitted carpets.

Kitchen/Dining/Living (4.36m x 6.34m)

Well presented open plan living space offering a comprehensive range of wall, base and drawer units in a light grey finish with contrasting work surfaces, matching splash back and chrome handles, inset one and half bowl stainless steel sink unit with drainer and mixer tap over, integrated double oven, four ring gas hob and fitted extractor hood plus fridge and freezer with further space and plumbing for free standing appliances, naturally light with double glazed window and French doors to rear elevation, central heating radiator and ceramic tiled flooring.

First Floor Landing (3.10m x 1.71 (max))

Providing access to loft space, built in airing cupboard housing hot water cylinder, central heating radiator and fitted carpets.

Main Bedroom (4.21m x 3.96m (max))

Spacious main bedroom with double glazed window to front elevation, attractive décor throughout, central heating radiator and fitted carpets.

En-Suite Shower Room (2.36m x 1.43m)

Attractive en-suite comprising double length fully tiled shower cubicle complete with mains powered shower over, pedestal wash basin and low flush w/c, tiled splash backs, fitted extractor, central heating radiator and ceramic tiled flooring.

Bedroom Two (3.70m x 3.13m)

A further good sized double bedroom with double glazed window to rear elevation, central heating radiator and fitted carpets.

Bedroom Three (3.08m x 2.80m)

Third spacious double bedroom currently used as a dressing room with double glazed window to rear elevation, central heating radiator and fitted carpets.

Bedroom Four (3.49m x 2.40m (max))

A further good sized bedroom with double glazed window to front elevation, central heating radiator and fitted carpets.

Family Bathroom (2.12m x 1.90m)

Modern white three piece suite comprising panelled bath complete with fitted shower attachment, pedestal wash basin and low flush w/c, partially tiled walls, fitted extractor fan, central heating radiator and ceramic tiled flooring.

Garage and Drive

Single brick built detached garage with up and over door to front elevation, power supply and light. The garage is accessed via a private drive providing ample off street parking.

External

Enjoying a corner plot this property boasts an impressive garden to the rear having been mainly laid to lawn and offering a fair degree of privacy throughout, fenced surround, elevated decking with timber built pergola housing hot tub, external power socket and gated side access.

Council Tax

Council Tax is payable to East Riding of Yorkshire Council, with the property understood to be rated in Tax Band E.

Tenure

The property is understood to be Freehold (To be confirmed by Vendor's Solicitor).

Disclaimer:

These particulars are produced in good faith, are set out as a general guide only and do not constitute, nor constitute any part of an offer or a contract. None of the statements contained in these particulars as to this property are to be relied on as statements or representations of fact. Any intending purchaser should satisfy him/herself by inspection of the property or otherwise as to the correctness of each of the statements prior to making an offer. No person in the employment of Woolley & Parks Ltd has any authority to make or give any representation or warranty whatsoever in relation to this property.

Draft Details:

To date these details have not been approved by the vendor and should not be relied upon. Please confirm all details before viewing.

Virtual Viewing/Videos

A 3D virtual Tour/video of this property has been commissioned to enable you to obtain a better picture of it before deciding to arrange a physical viewing. We accept no liability for the contents/omissions of the video/3D Tour and recommend a full physical viewing takes place before you take steps in relation to the property (including incurring expenditure).

Floorplan for Armistice Park, Driffield Floorplan for Armistice Park, Driffield Floorplan for Armistice Park, Driffield
EPC Graph for Armistice Park, Driffield

To discuss this property please call us on:

01377 252095

Ref No: 32619842

ARRANGE A VIEWING