Woolley & Parks Estate Agents
X
× Home Sell Your Home Book In-Depth Online Valuation Instant Valuation Lettings Land & New Homes Success Stories Register New Homes Available About Us Meet the Team Blogpost Contact Us

3 Bedrooms House - Semi-Detached For Sale

Alton Park, Beeford, Driffield £225,000

3 3 1 1 1 1
***ATTRACTIVE SEMI DETACHED IN A SOUGHT AFTER LOCATION*** 360° VIRTUAL TOUR AVAILABLE ONLINE ***

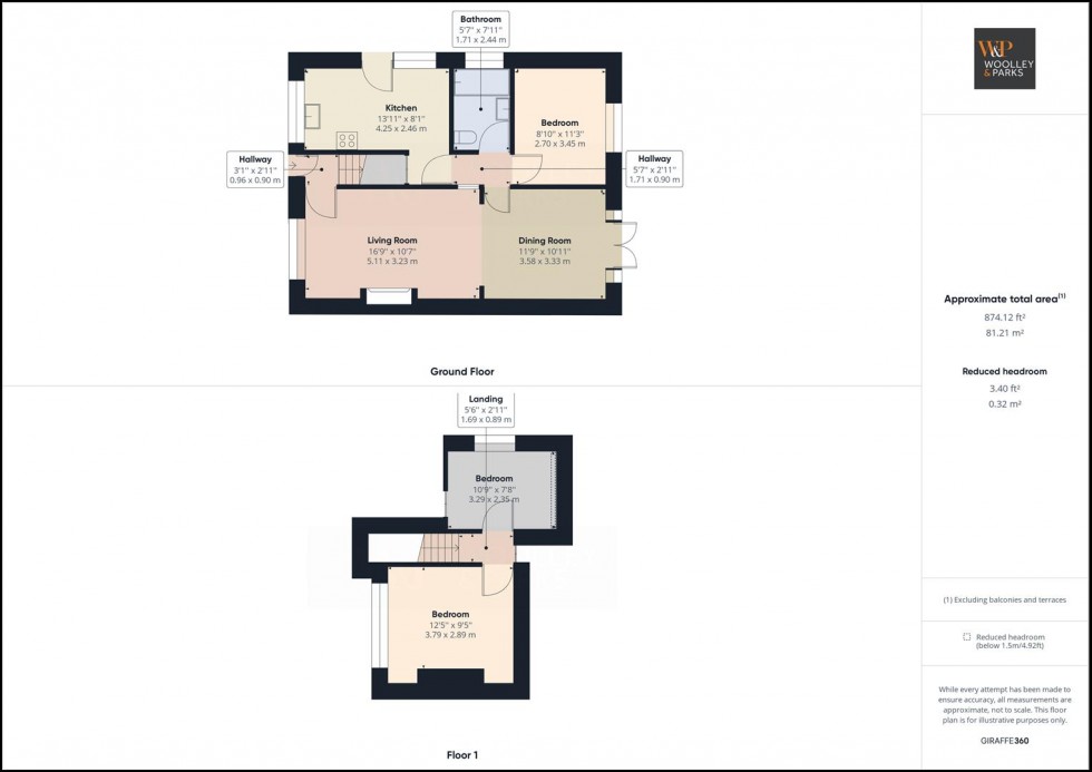
This deceptively spacious semi detached property is sure to impress. Having been immaculately kept and presented by the current owners offering a sizeable family home in a turn key condition. Updated and modernised over the years to offer hugely versatile well proportioned accommodation over two floors. An inviting entrance hall, open plan lounge/dining room, attractive fitted kitchen, stylish bathroom and bedroom all to the ground floor with two further bedrooms to the first. Low maintenance gardens to both the front and rear plus single garage, car port and private drive. Located within the popular village Beeford boasting a variety of amenities on the doorstep plus countryside walks and well regarded primary school. Offered to the open market at a competitive price this home truly deserves internal inspection to fully appreciate the true size and quality on offer.
  • Semi-detached
  • Dormer Bungalow
  • Well Presented Accommodation
  • Neutral Decor Throughout
  • Low Maintenance Gardens
  • Village Location
  • Garage
  • Off Street Parking
  • EPC Rating - TBC

Entrance Hall (0.96m x 0.90m)

Inviting entrance hall with double glazed external door to front elevation, straight flight staircase to first floor accommodation, central heating radiator and fitted carpets.

Kitchen (4.25m x 2.46m)

Modern fitted kitchen offering a comprehensive range of wall, base, drawer and display units in a light wood grain finish with contrasting roll top work surfaces, tiled splash backs and chrome handles, inset one and half bowl stainless steel sink unit with drainer and mixer tap over, integrated oven, four ring gas hob and fitted extractor hood plus ample space and plumbing for free standing appliances, naturally light with double glazed windows to dual aspect, under stairs storage cupboard, spot lighting, external door to side, central heating radiator and wood effect flooring.

Living Room (5.11m x 3.23m)

Beautifully presented living room with double glazed bow window to front elevation, living flame gas fire with marble effect insert and ornate surround, attractive wall lights, central heating radiator, fitted coving and carpets laid throughout.

Dining Area (3.58m x 3.33m)

Open plan dining area with double glazed French doors to rear elevation, central heating radiator, continued fitted coving and carpets.

Inner Hall (1.71m x 0.90m)

With wood effect flooring throughout.

Bathroom (1.71m x 2.44m)

Stylish family bathroom fitted with a white three piece suite comprising 'p' shaped panelled bath complete with mains powered shower over, pedestal wash basin and low flush w/c, fully tiled walls, double glazed window to side elevation, fitted extractor fan, wall mounted chrome heated towel rail and wood effect laid flooring.

Bedroom Two (2.70m x 3.45m)

Hugely versatile room currently used as a ground floor bedroom with double glazed window to rear elevation, central heating radiator and fitted carpets.

First Floor Landing (1.69m x 0.89)

With double door built in storage and fitted carpets.

Main Bedroom (3.79m x 2.89m)

Well presented main bedroom with double glazed window to front elevation, central heating radiator and fitted carpets.

Bedroom Three (3.29m x 2.35m)

A further spacious bedroom with double glazed window to side elevation, eaves storage, central heating radiator and fitted carpets.

Garage, Car Port and Drive

Single garage to the side of the property with double hung doors, power supply and light plus personal door to the side. The garage is accessed via a private drive offering ample off street parking and car port.

External

Enclosed garden to the rear of the property providing a fair degree of privacy throughout. Having been mainly laid to gravel with well stocked and decorative beds, hedge surround, large paved patio area offering a great space to entertain with timber built garden shed and gated side access.

Council Tax

Council Tax is payable to East Riding of Yorkshire Council, with the property understood to be rated in Tax Band B.

Tenure

The property is understood to be Freehold (To be confirmed by Vendor's Solicitor).

Disclaimer:

These particulars are produced in good faith, are set out as a general guide only and do not constitute, nor constitute any part of an offer or a contract. None of the statements contained in these particulars as to this property are to be relied on as statements or representations of fact. Any intending purchaser should satisfy him/herself by inspection of the property or otherwise as to the correctness of each of the statements prior to making an offer. No person in the employment of Woolley & Parks Ltd has any authority to make or give any representation or warranty whatsoever in relation to this property.

Draft Details:

To date these details have not been approved by the vendor and should not be relied upon. Please confirm all details before viewing.

Virtual Viewing/Videos

A 3D virtual Tour/video of this property has been commissioned to enable you to obtain a better picture of it before deciding to arrange a physical viewing. We accept no liability for the contents/omissions of the video/3D Tour and recommend a full physical viewing takes place before you take steps in relation to the property (including incurring expenditure).

Floorplan for Alton Park, Beeford, Driffield Floorplan for Alton Park, Beeford, Driffield Floorplan for Alton Park, Beeford, Driffield

To discuss this property please call us on:

01377 252095

Ref No: 32551486

ARRANGE A VIEWING